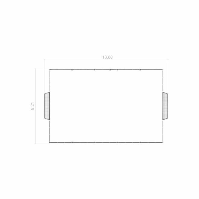
Highbury - Top view
Catalog number: 11565